Unterm Heilig Kreuz 4, Fulda
+49(0)170-43 721 43
info@leorda.de

Objekt-Nr.: LHG-04-1

Gewerbeobjekt

Wachstum durch Sichtbarkeit

Beschreibung

Basisdaten
Bilder

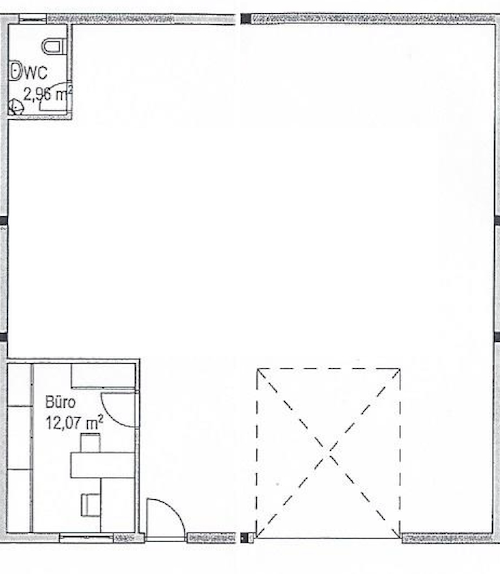
Lagerhalle Grundriss

Bild 5 von 11

Exposé anfragenFinanzierung

Alle Angaben sind ohne Anspruch auf Korrektheit und Vollständigkeit, sowie ohne Gewähr.